Rolka jezdna do minikoparki CASE 31 to kluczowy element układu podwozia, odpowiedzialny za stabilne prowadzenie i utrzymanie napięcia gąsienicy podczas pracy w każdych warunkach terenowych. Dzięki niej minikoparka zachowuje płynność ruchu oraz stabilność, co zwiększa bezpieczeństwo pracy operatora oraz pozwala na precyzyjne manewrowanie maszyną podczas realizacji wykopów i transportu na placu budowy.
Stosowanie rolki jezdnej wysokiej jakości pozwala równomiernie rozłożyć ciężar maszyny na gąsienicach, co ogranicza ryzyko zapadania się na miękkim podłożu oraz chroni inne elementy układu jezdnego przed nadmiernym zużyciem. Dzięki temu Twoja minikoparka CASE 31 może pracować efektywnie, z mniejszym oporem toczenia i ograniczonym zużyciem paliwa.
Zamiennik marki ITR – pewność i trwałość
Prezentowana rolka jezdna to wysokiej klasy zamiennik marki ITR, producenta specjalizującego się w częściach zamiennych do maszyn budowlanych. Rolka wykonana jest z hartowanej stali o zwiększonej odporności na ścieranie, pękanie oraz uszkodzenia mechaniczne, co zapewnia jej długą żywotność nawet w warunkach intensywnej eksploatacji. Produkty ITR przewyższają pod względem jakości wiele części oryginalnych, co pozwala ograniczyć koszty serwisowe oraz przestoje, zachowując pełną gotowość minikoparki CASE 31 do pracy w każdych warunkach.
Najważniejsze zalety
- Utrzymuje prawidłowe napięcie gąsienicy, zapobiegając jej zsuwaniu podczas pracy.
- Zapewnia stabilność maszyny na grząskim oraz nierównym terenie.
- Chroni elementy układu podwozia przed przyspieszonym zużyciem.
- Wyposażona w fabryczne smarowanie oraz uszczelnienia chroniące przed wodą i błotem.
- Przystosowana do pracy w warunkach intensywnej eksploatacji budowlanej.
Specyfikacja techniczna
- Typ: Rolka dolna (nośna)
- Model: CASE 31
- Kompatybilność: Gąsienice gumowe
- Materiał: Hartowana stal odporna na ścieranie
- Výrobce: ITR
Dlaczego warto?
Wybierając rolkę jezdną marki ITR do CASE 31, inwestujesz w trwałość oraz niezawodność podwozia swojej minikoparki. To rozwiązanie premium, które pozwala ograniczyć koszty serwisowe, zminimalizować ryzyko przestojów oraz zapewnić płynną, efektywną i bezpieczną pracę maszyny w każdych warunkach terenowych.
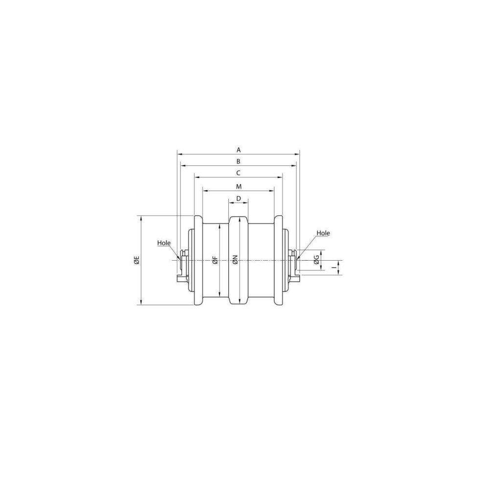
Rozměry: |
|---|
| A | 166,00 mm |
| B | 158,00 mm |
| C | 115,00 mm |
| D | 40,00 mm |
| E | 118,00 mm |
| F | 94,00 mm |
| G | 28,00 mm |
| I | 15,00 mm |
| M | 86,00 mm |
| N | 118,00 mm |
Další informace: |
|---|
| ŚRUBA M14x1.5 |
pasuje mimo jiné pro stroje: |
|---|
| Výrobce: | Model: | Typ: | Verze: |
| CASE | 23 | - | - |
| CASE | 28 | - | - |
| CASE | 31 | - | - |
| CASE | 35 | - | - |
| CASE | CX23 | - | - |
| KOBELCO | SK020 | - | - |
| KOBELCO | SK025 | - | - |
| KOBELCO | SK030 | - | - |
| KOBELCO | SK035 | - | - |
| KOBELCO | SK30 | - | UR |
| TAKEUCHI | TB125 | - | - |
| TAKEUCHI | TB135 | - | - |
| TAKEUCHI | TB138 | - | FR |
| TAKEUCHI | TB228 | - | - |
| TAKEUCHI | TB235 | - | - |
| TAKEUCHI | TB28 | - | FR |
Alternativní indexy / cross |
|---|
| 04313.11100 | 6007420M92 | 77264662 | S04313.11100 |